Schedule A Tour
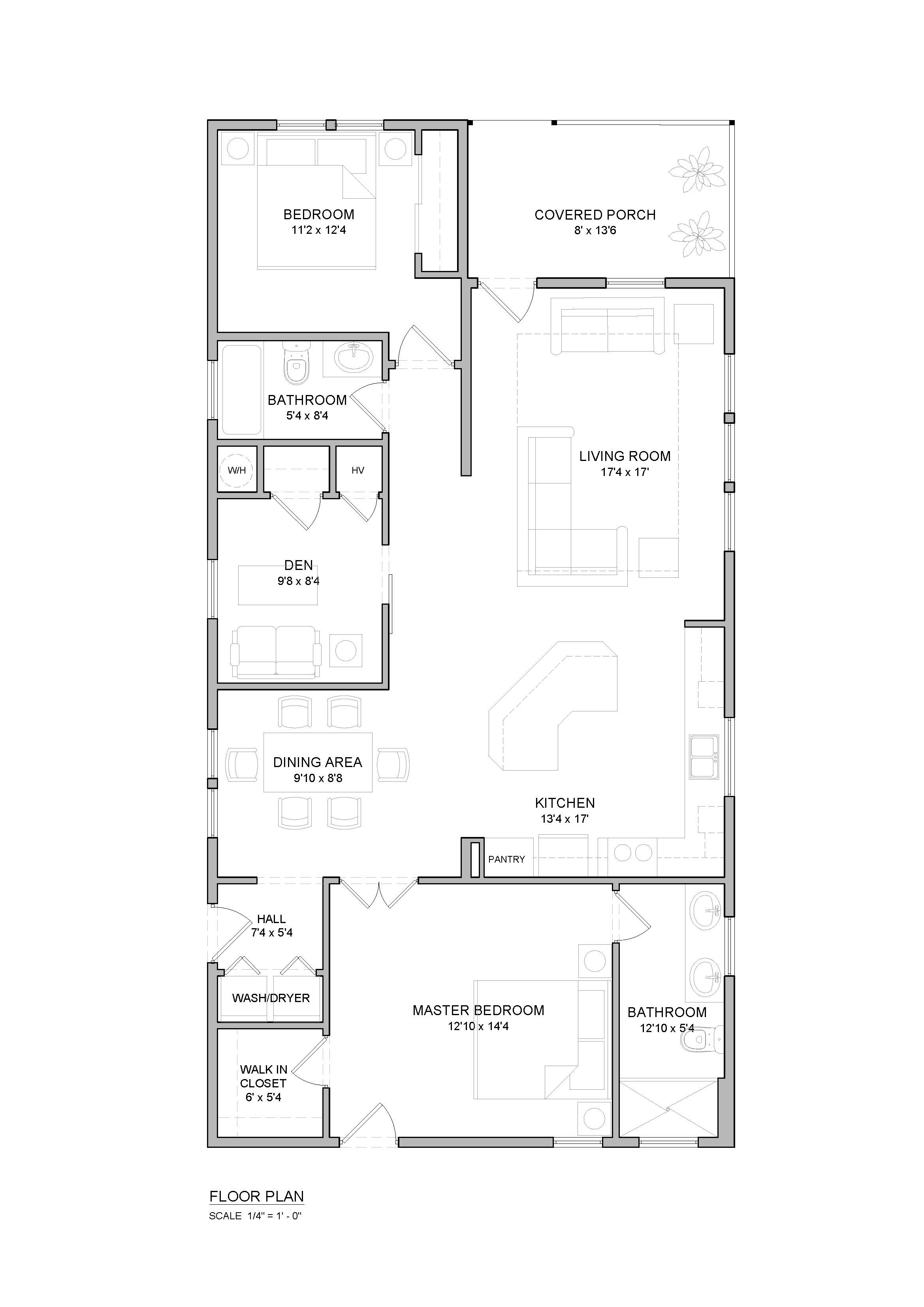
Details
Welcome Home
Introducing The Coral Coastal Home, a brand new 2-bedroom, 2-bathroom residence offering 1,280 sq ft of thoughtfully designed living space. This home features a covered front porch, ideal for relaxing outdoors, and an open concept floor plan that enhances the spacious feel throughout. Inside, luxury vinyl plank flooring flows seamlessly across the living areas, complemented by tray ceilings and crown molding for added elegance. The kitchen is equipped with beautiful hardwood shaker cabinetry, a ceramic tile backsplash, and high-definition countertops, along with a kitchen island that provides ample storage space. Stainless steel electric appliances and a farmhouse kitchen sink add to the home’s modern charm. The main bathroom includes a walk-in ceramic tile shower, while both bathrooms boast framed mirrors and satin & brushed nickel hardware. Designer pendant lights illuminate the home’s carefully curated finishes. Built to the highest Wind Zone 3 (WZ3) standards, The Coral Coastal Home combines luxury, durability, and style for the ultimate living experience.
Introducing the brand-new Osprey Bay, a premier 55+ community located in the sun-drenched City of Palms, where sparkling waves meet white sand. Nestled within the heart of Fort Myers, Osprey Bay offers unparalleled access to everything this vibrant city has to offer. From the serene shores of Sanibel Island and stunning beaches to an abundance of top-tier restaurants, retail, museums, and coastal lifestyle experiences, this home provides a gateway to the very best of Fort Myers and beyond. Whether you're seeking relaxation by the water or exploring local attractions, Osprey Bay places you at the center of it all, offering a true taste of Florida’s idyllic coastal living.
*Model home starting price subject to change*
